


近日,宁波市自然资源和规划局江北分局就江北区JB14-04-05地块规划方案和江北JB12-02-04地块项目规划方案进行批前公示。
江北区JB14-04-05地块规划方案批前公示
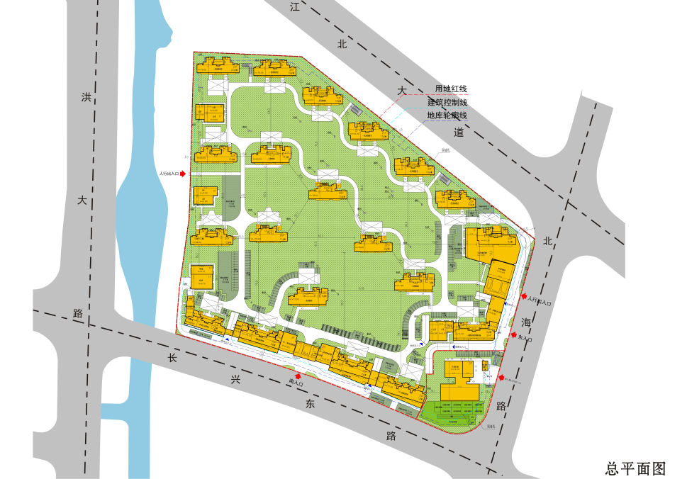
江北区JB14-04-05地块东至北海路,南至长兴东路,西至洋市河沿河绿带,北至江北大道沿路绿带。

该地块总用地面积80142m²,总建筑面积约291246m²,容积率约2.6,绿地率约30%。

江北JB12-02-04地块项目规划方案批前公示
江北JB12-02-04地块位于江北区庄桥街道康桥南路东侧,东至规划道路,南至李冯路,西至康桥南路,北至规划道路。

总平面图
该地块总用地面积约14980.60㎡,总建筑面积约45829.32㎡,建筑密度约30%,容积率约2.2,绿地率约30%。

鸟瞰图
来源:江北发布